Ide Denah Rumah Ukuran Tanah 7x12m Lantai 2 Terlihat Indah
Rabu, 05 April 2017
Ide denah rumah ukuran tanah 7x12m lantai 2 Terlihat Indah - Kami bagikan berikut ini sebagian desain gambar denah rumah yg kami rasa terlihat kreatif dng judul denah rumah ukuran tanah 7x12m lantai 2. Artikel berikut ini buat pengunjung yang tengah memerlukan info gbr. gambar denah rumah, semoga sesuai dg yang diperlukan. Dalam posting dibawah terdapat 4 model yang mungkin dapat menambah ide buat anda terkait denah rumah ukuran tanah 7x12m lantai 2 terlihat indah. Harapan kami anda bisa mendapatkan beberapa ide yang baru. Pada photo gambar denah rumah terlihat indah dibawah, kami rasa tampak indah serta memiliki nilai desain tersendiri
Harapan kami posting terbaru ini dpt menambah ide buat pembaca. Share ke teman anda lainnya bila materi tg 06-04-2017 ini menarik.
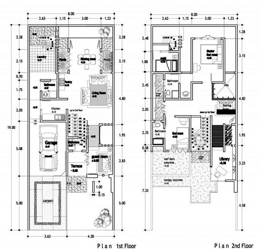
Contoh denah rumah ukuran tanah 7x12m lantai 2 yang moderen
Harapan kami review kesempatan ini dapat memicu wawasan bagi anda mengenai denah rumah ukuran tanah 7x12m lantai 2 terlihat indah. Dalam menyimak contentnya disarankan gunakan secara teliti pd konten yang modelrumahnya.blogspot.com publikasikan ini. Bila memang dibutuhkan diskusikanlah pada spesialis dibidangnya. Terkadang kita juga membutuhkan sebuah inspirasi dalam kreatifitasnya untuk diterapkan pada desainnya. Karena itu modelrumahnya.blogspot.com bagikan beberapa gambar gambar denah rumah yg dpt berguna untuk pengunjung.

Kreasi denah rumah ukuran tanah 7x12m lantai 2 terkini
ulasan mengenai denah rumah ukuran tanah 7x12m lantai 2 merupakan sebuah tema yang menarik dan seringkali ada pula yg membutuhkannya. Karena itu kami posting contoh gambar yang kami lihat bisa dipakai rujukan. Artikel yang diposting pada tg Apr 06, 2017 berikut hanya sekedar untuk informasi saja, baik berupa gambar atau sejenis yg lain. .

Harapan kami posting terbaru ini dpt menambah ide buat pembaca. Share ke teman anda lainnya bila materi tg 06-04-2017 ini menarik.